5 locali in vendita

Palermo, Viale della regione siciliana nord ovest - Parisio
€ 255.000
Prezzo aggiornato
5 locali 5 locali
160 Mq 160 Mq
2 bagni 2 bagni

5 locali in vendita

Palermo, Viale della regione siciliana nord ovest - Parisio

Descrizione annuncio

VIALE REGIONE SICILIANA NORD OVEST

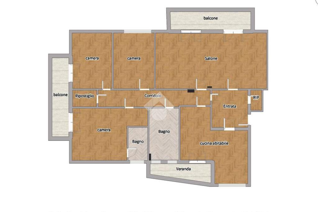
Nel cuore di Palermo, nella zona Regione Siciliana/Settembrini a 600mt dalla Circonvallazione di via Leonardo Da Vinci, si propone in vendita un ampio appartamento di 160 mq situato al quinto piano di un edificio dotato di ascensore e videosorveglianza.

La proprietà, costruita negli anni '70, offre una spaziosa quadratura personalizzabile, ideale per chi desidera adattare gli spazi alle proprie esigenze.

L'appartamento è composto da cinque locali, tra cui tre camere da letto, due bagni e il salone doppio, perfette per momenti conviviali. La tripla esposizione garantisce luminosità in ogni ambiente, mentre i tre balconi offrono piacevoli spazi esterni su un'ampia vista panoramica.

Situato su Viale Regione Siciliana Nord Ovest, l'immobile è parquettato e dotato di aria condizionata e riscaldamento autonomo alimentato a metano, assicurando comfort in ogni stagione. Vi è inoltre installato il sistema di allarme.

Completa la proprietà una cantina di pertinenza, utile per riporre oggetti e attrezzature. Una soluzione abitativa versatile e ben collegata, pronta ad accogliere nuove idee di design.

Per poter visionare l'immobile è possibile organizzare un appuntamento, chiedici come fare contattandoci allo 091.682.90.90 oppure inviandoci direttamente un messaggio su Whatsapp 3317453725.

Il nostro franchising, su richiesta, mette a disposizione dei propri clienti un consulente Kiron che, si occupa della mediazione creditizia e assicurativa. Contattateci se volete una consulenza, gratuita, per sapere quale sia la scelta più adatta alle vostre esigenze.

Mostra tutto

Nelle vicinanze

Trasporto pubblico Trasporto pubblico
Ex Stazione Uditore
Ex Stazione Uditore
1,1 Km
Palermo Notarbartolo
Palermo Notarbartolo
1,5 Km
Settembrini/Di Blasi
Settembrini/Di Blasi
30 m
Di Giorgi/Di Blasi
Di Giorgi/Di Blasi
160 m
Regione Siciliana - Di Blasi
Regione Siciliana - Di Blasi
80 m
Ricariche auto elettriche Ricariche auto elettriche
R.Star Concessionaria | EnelX
2,0 Km
Conad Centro Commerciale Ai Leoni | EnelX
2,2 Km
CONAD SUPERSTORE Palermo Mandalà | EnelX
2,4 Km
EnelX EVA+ Negozio Enel di Palermo
2,6 Km
IONITY Basile Palermo
2,9 Km
Scuole Scuole
Istituto Comprensivo Statale "Antonio Ugo"
670 m
Peppino Impastato
730 m
Istituto Tecnico Economico e per il Turismo Pio La Torre
780 m
Scuola Media Statale Leonardo Da Vinci
820 m
Scuole
850 m
Farmacia Farmacia
Farmacia Bonsignore
240 m
Mancino
910 m
Di Maio
1,2 Km
Farmacia
1,2 Km
Farmacia Erboristeria Pitrè - Dr. Salvatore Margiotta
1,6 Km
Ospedali Ospedali
Radial - Diagnostica per Immagini
2,6 Km
Ospedale dei bambini "Giovanni Di Cristina"
2,7 Km
Supermercati Supermercati
ARD
710 m
Conad
770 m
Simply
900 m
Md
940 m
Prezzemolo & Vitale
1,1 Km
Negozi Negozi
Di Maio
330 m
Pecoraro
350 m
Negozi
370 m
M.N. Minimarket
830 m
Di bella
860 m
Bar Bar
Cobra
280 m
Bar
370 m
Facebar
810 m
Lo bianco
1,1 Km
Il bacio nero
1,5 Km
Ristoranti Ristoranti
Lo Strascino
190 m
Asia
530 m
Oceania
990 m
Casa Nostra
1,1 Km
Fratelli Di Giovanni
1,2 Km
Mostra tutto

Caratteristiche

Rif.:
61186104
Piano:
5 di 6 con ascensore (Piano alto)
Balconi:
3
Camere da letto:
3
Arredamento:
Assente
Condizionamento:
Autonomo
Mostra tutto
Prezzo Prezzo
€ 255.000
Rata mutuo Rata mutuo
€ 1.211 / mese
Spese annue Spese annue
€ 960
Proponi il tuo prezzoProponi il tuo prezzo
Immobile valutato con T·Valuta

Classe Energetica

G
G
G
G
G
G
G
G
G
EP globale non rinnovabile:
175.00 kW h/m² anno
EP globale rinnovabile:
175.00 kW h/m² anno
EP invernale del fabbricato:
EP estiva del fabbricato:
Anno di costruzione:
1970
Riscaldamento:
Autonomo
Tipo impianto:
A radiatori
Tipo alimentazione:
Metano

Prezzo ridotto di €1 (4%%)

Ti interessa visionare l'immobile?

Fissa un appuntamento  Fissa un appuntamento

Richiedi informazioni

Clicca su Leggi per aprire l'informativa
* Questi campi sono obbligatori

Calcola il tuo mutuo

Semplice e senza impegno
Anticipo

( % )
Mutuo

( % )

pochi semplici passi

inserisci i tuoi dati
Questionario completato
Grazie per aver richiesto un appuntamento senza impegno con un nostro Consulente del Credito e Assicurativo.

Hai inserito correttamente tutti i dati necessari e a breve riceverai una e-mail con un link da convalidare per inviare i tuoi dati.
Affiliato
Parisio Immobiliare Srl
Via Cataldo Parisio, 68 90145 Palermo (PA)

Il nostro staff


  • Alessia Messina
    Coordinatrice

  • Serafino Biondo
    Affiliato

  • Laura Sutera
    Responsabile

  • Maria Veronica D'Agostino
    Collaboratrice

  • Micaela Mesi
    Coordinatrice
Via Cataldo Parisio, 68 90145 Palermo (PA)
Zona: C. Parisio - Serradifalco - L. Di Brolo - Noce
Mostra su mappa
Orari: Dal lunedì al venerdì: 09:00-13:00 / 15:30-19:30 - Pausa pranzo su appuntamento - Sabato: 09:00-13:00 / 16:00-19:00
Affiliato
Parisio Immobiliare Srl
Via Cataldo Parisio, 68 90145 Palermo (PA)

2026 Tecnocasa Franchising S.p.A. - P. IVA 08365160152 - Via Monte Bianco 60/A 20089 Rozzano (MI). Ogni agenzia ha un proprio titolare ed è autonoma. Privacy policy | Policy utilizzo | Cookie policy